A seulement 10 minutes en bus du Flon, c’est ici que vous pourrez bénéficier de tous les commerces et autres commodités. Une pharmacie se tient au rez-de-chaussée de cet immeuble, la Coop prend place à la rue d’en face. Les accès autoroutiers sont à 7 minutes en voiture. Le Stade Olympique de la Pontaise est à environ 1 km.
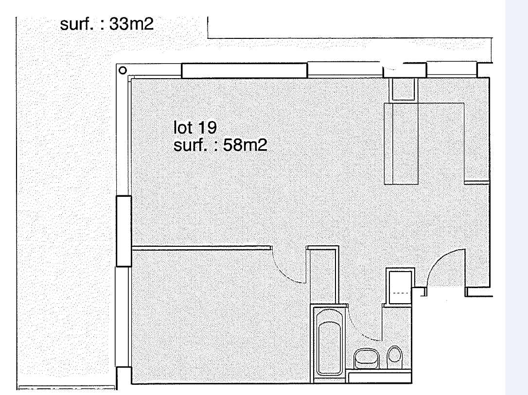
2,5 pièces au 5ème étage, 58m2 - Immeuble récent.
Hall d’entrée avec armoire murale, cuisine entièrement agencée, salon/ salle à manger, chambre à coucher avec grandes armoires murales, salle de bains-wc-lavabo, balcon.
Vue sur le lac et les montagnes.
Loyer CHF. 2'200.00
CHF. 90.00
Changement hebdomadaire ou bimensuel de la literie. Ménage sur demande 48 heures à l’avance. CHF. 40.00/h. (HT)
Disponibilité à convenir
APPARTEMENT DE 2,5 PIÈCES A LAUSANNE.